Skip to content

Shop 16 / 11 Poyston Drive

Shearwater TAS 7307

Contact Elders Commercial

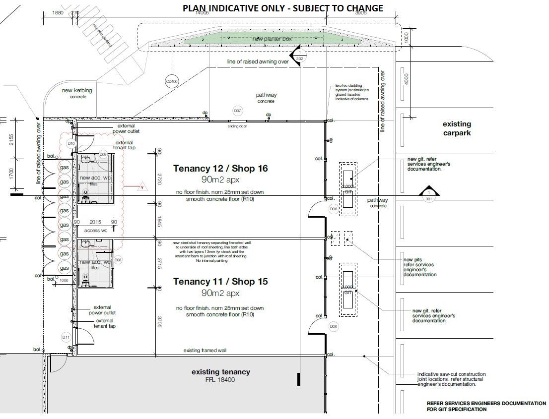
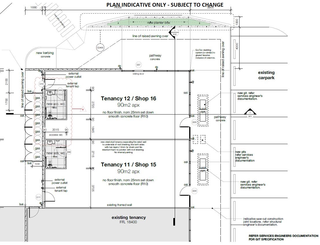
Fully Fitted Fast Food Opportunity

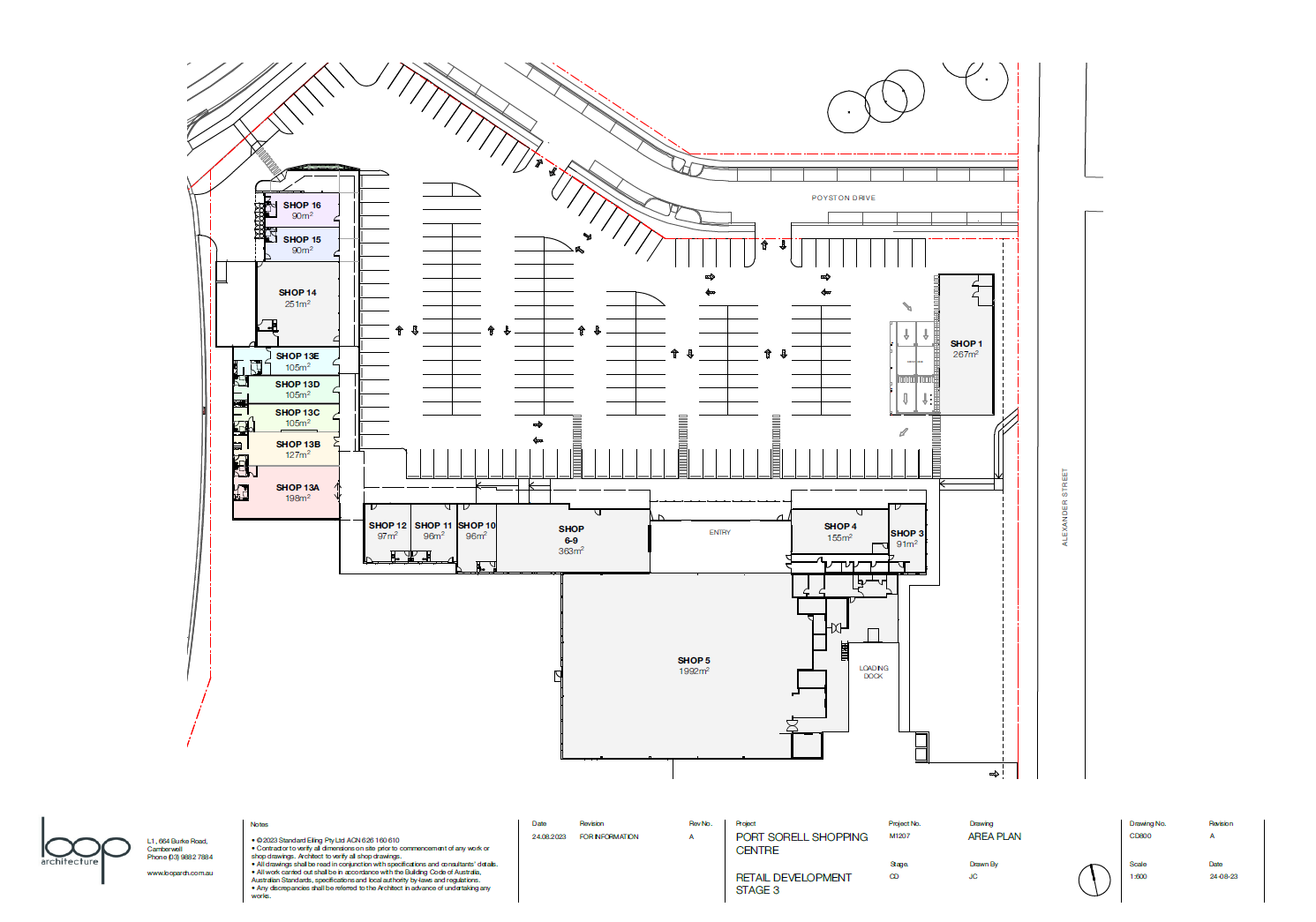
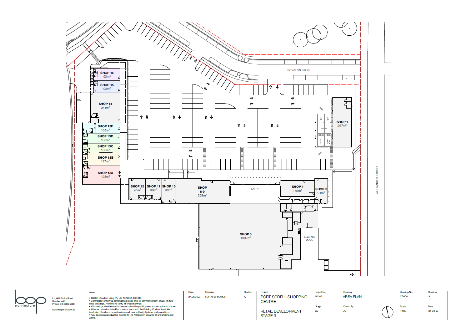
Elders Commercial is pleased to present Shop 16, located within the Port Sorell Shopping Centre. Port Sorell is a highly successful Neighbourhood Centre which services the strong trade areas of Port Sorell, Shearwater and Hawley Beach within North West Tasmania.

This well-positioned corner tenancy offers approximately 90 sqm* of lettable area, plus external seating area and presents an excellent opportunity for hospitality or food-related operators to lease a fully fitted commercial kitchen ready for immediate use*.The shop benefits from high visibility within a popular Centre comprising Woolworths, BWS, Amcal and Salvos Stores, as well as a number of quality retailers.

For further information or to arrange an inspection of this fully fitted tenancy, please contact Elders Commercial.

*Note - Some leased equipment will be removed from the site prior to re-letting.

Features

General Features

  • Commercial Type: Retail
  • Building Area: 90sqm

Elders Real Estate Devonport

Enquire about Shop 16/11 Poyston Drive, Shearwater, TAS, 7307

Property guides and resources

Q1 2026 Property Market Review: Where Australia Stands and What Comes Next

As the first quarter of 2026 wraps up, the Australian property market…
Read more

Why the Market Reawakens After Easter

Every year, the Australian property market seems to follow a familiar rhythm.…
Read more

Elders Real Estate Celebrates a Record-Breaking Awards Season

The 2025 Elders Real Estate Annual Awards delivered a powerful snapshot of…
Read more